22
$21 Rent
Listed 10 hours ago
109 Vanderhoof Avenue, #203
· 0
· 1
· -
· -
Listing History
Buy/Sell/Terminated/Expired listing history for 109 Vanderhoof Avenue, #203
Key Facts
Key facts for 109 Vanderhoof Avenue, #203
Property Type
Commercial
Parking
Outside/Surface
MLS #
C12497958
Size
-
Basement
-
Listed on
2025-10-31
Lot size
0 x 0.0
Tax
$14 /yr
Days on Market
1
Approximate Age
-
Maintenance Fee
-
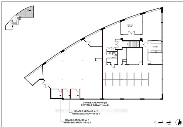
Description
Fabulous Second Floor Premier Office Space Combining Traditional Post and Beam Interior With Modern High End Finishes. Plenty of Natural Light, Featuring Private Entrance, High Ceilings and Corner Exposure On Two Sides. Extremely Flexible Space With Private Boardrooms. Large Open Areas and Private O...ffices. Also Includes Large Kitchen and Private Washroom. Great Signage. Plenty of Parking. Conveniently Located Just Minutes from Laird and Eglinton. Space could be demised into two equal sized units.
Similar Properties (No results)
Courtesy of: HARVEY KALLES REAL ESTATE LTD.